
こんにちは!一級建築士の八木です。
今回は間取りの中でも子ども部屋のプランニングについて考察してみたいと思います。
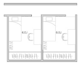
一般的には、子ども一人分のスペースを確保するために、おおよそ6帖の広さが必要とされています。
この広さは、ベッドや勉強机、本棚、おもちゃ箱、クローゼットなどを配置できる寸法です。

とはいえ、最近は土地も建物も値段が高い! できるだけコストをおさえて家をつくりたい!
となると、子ども部屋も機能を損なわず、ミニマムにできないかと考えてしまいます。
うちの子は片付けが苦手。
部屋にこもると勉強が手につかない。など
日々、親の家事仕事の手がとまって諭すシチュエーションもなんとかしたい。
実は、設計の方法によっては子ども部屋は更にコンパクトにすることもできます!
しかも、そんな親の悩みまで解決できるアイデアがたくさんあるのです!
今日は、子ども部屋の間取りを一緒に考えてみましょう。
共有のスタディスペース
子ども部屋の前の廊下へ机を出すことで、大きなスタディスペースをつくることが出来ます。
最近は在宅勤務をする機会が増えていて、施主様からも「ワークスペースを、書斎を」との要望を頂戴します。
廊下に大きなワークスペースを兼ねたスタディスペースを設けると、家族でシェアもできます。
家族が近距離で仕事・勉強に向き合うスペースは、アイデア・アンサーの場にもなります。
お子様が取り組んでいる教材の質問にお父さんが答えたり、時にはお父さんが最近のこどもの感性や流行りをたずねることが仕事に役立つ場面もあります。
元々ある廊下の利用目的を「室内通路」に限定しないことで、子ども部屋を小さくしながらも勉強スペースを確保できます。
ワークスペース+スタディスペースは、細長い廊下にはうってつけの機能です。

共有のライブラリーのある家
子ども部屋の前の廊下へ本棚を出すことで、大きなライブラリースペースとなります。
これだけのスペースがあると家族の本をシェアする事ができます。
幼少の頃から様々な本に触れる機会ができて、読み書きが得意なお子様に育つかもしれませんね。

ちなみに、ワークスペース・スタディースペースの話を前段でしましたが、ワークデスクの上部に棚を数段設けて「ライブラリー+ワーク&スタディスペース」というのもよいです。

共有のWIC(ウオークインクロゼット)で片付け上手に
子ども部屋の前の廊下へクローゼットを出します。
衣服含め収納するものをすべて廊下に出してしまいます。

廊下は通路(ウォークスルー)する空間です。
その通路にクローゼットをインすることで、共用スペースを本能的に片付けることができます。
もし廊下を散らかすと通路機能を損なうので、自発的に片付けるしかなくなるわけです。
また、部屋の外に子どものクローゼットがあるので服の出し入れが楽になりますし、思春期あるあるの「部屋に入ってこないで!」も、回避できます。
プライバシーとは、自分勝手になりがちで自主性に左右されがちです。
これは廊下にスタディースペースを設けるケースも同じですが、セルフゾーンから共用空間に押し出すことで、他人の目にも触れ、規律が生まれやすくなります。
それに共用空間を身勝手に利用すると周囲が困ります。
例えば友達が来るとき、弟の荷物が廊下に散らばっていてはお姉さんは困ります。
そうして家族が互いに整理整頓に向き合うことが出来ます。
部屋の中だと片づけは「個人の勝手」になってしまいがちです。
廊下をうまく利用して、収納・勉強・仕事・ライブラリーなどプラスαの機能を設定すると、廊下はもうスルーするだけの空間でなくなります。

既成概念にとらわれない
間取りとはこういうものだという思いにとらわれず、プライバシーが必要な空間を目的別に仕分けをすると、そもそもプライバシーを設定する必要のない機能が、子ども部屋の中にあることを知って頂けたかと思います。
今回は子ども部屋についてのお話でしたが、家の間取りに対して、既存概念を取り払って、施主様の価値観で考えていくと必要のない壁、間取り、が意外とあるのではないかと思っています。
以前サンフランシスコの家を見てきましたが、玄関にはいると、最初の空間はダイニングキッチンでした。香港では円卓が置かれたリビングでした。
お国柄と片付けてしまわず、本質を見ていくと共感できる部分もありました。
機会があれば是非ご一緒に、お客様だけのオンリーワンの間取りを作りましょう!